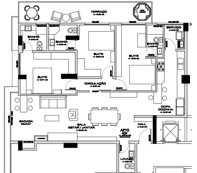
Apartamento Alto Padrão à Venda com 3 dormitórios, sendo 3 suítes, 130 m²
Rua Quintino BocaiuvaAmericano, Lajeado - RS
Informações
- Perfil: Novo
- Mobília: Mobiliado
- Andar: 4º
- Aceita FinanciamentoSimular Financimento
Medidas
- Área Total: 170 m²
- Área Privativa: 130 m²
Descrição
Edifício Palazzo
Construção em alto padrão
3 Dormitórios 3 suítes
Sala estar jantar
Cozinha
Lavanderia
Apto com 171,38m²
2 box 27,86m²
Salão de festas
Academia
Espaço kids
Guarita Blindada
Características
- Academia
- Água Quente
- Área de Serviço
- Churrasqueira
- Espaço Gourmet
- Espaço Kids
- Garagem
- Portaria 24 Horas
- Sacada com Churrasqueira
- Salão de Festas
O que tem perto?
- Açougue, Feiras e Supermercados
- Baladas
- Comércio
- Escolas Particulares
- Escolas Públicas
- Farmácia
- Ponto de Oníbus
- Ponto de táxi
- Posto de Gasolina
- Posto de Saúde




